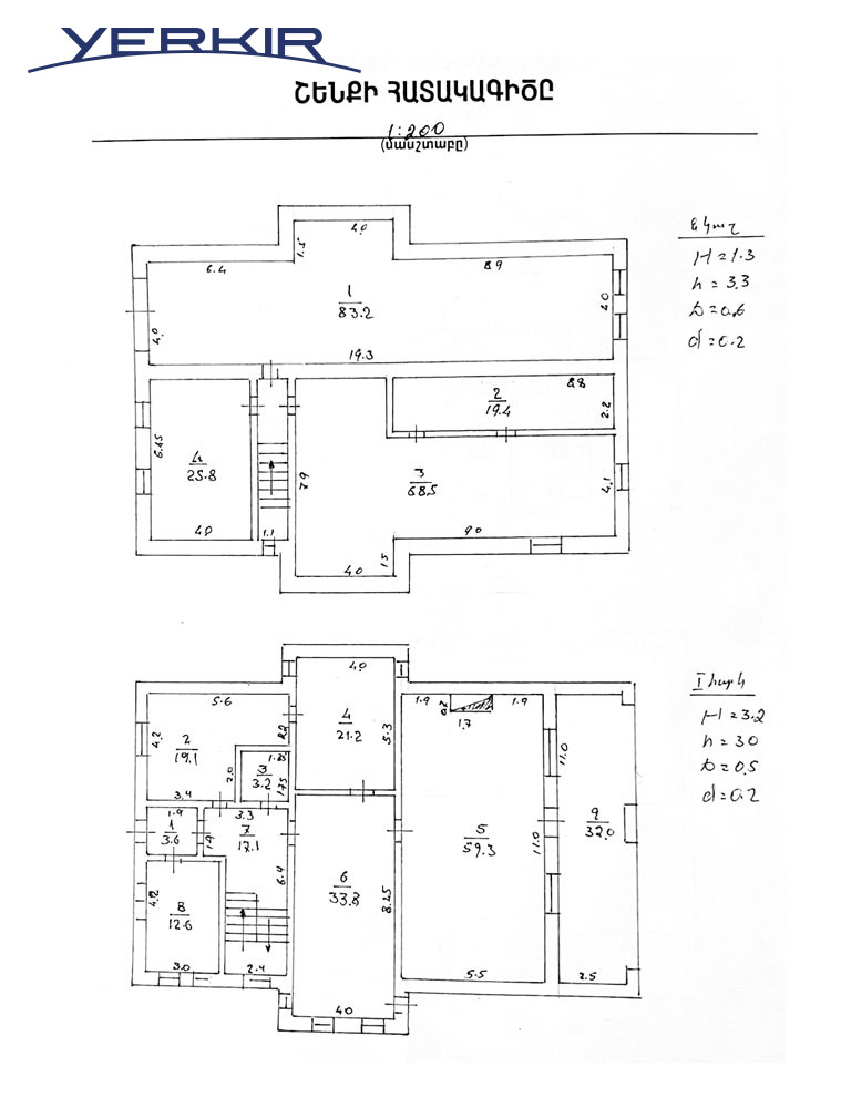
5 Комнатный Дом для продажи
Районы, Нор Гехи Сароян ул.
Код: 6+504831
Районы, Нор Гехи Сароян ул.
Код: 6+504831
Цена
$ 400,000
- ֏ 156,000,000
- ₽ 36,194,896
Описание
5 Комнатный Дом Продажа
Дополнительная информация
Солнечный
Красивый вид
Мансарда
Карта
Цена
$ 400,000
- ֏ 156,000,000
- ₽ 36,194,896










































