3 Комнатный Квартира для продажи
Арабкир, Грибоедов ул.
Код: 3+3136352
Арабкир, Грибоедов ул.
Код: 3+3136352
Цена
$ 279,000
- ֏ 108,810,000
- ₽ 25,245,940
Описание
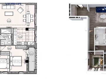
Продаётся просторная 3-комнатная квартира на 3 этаже 13-этажного новостроя. Выполнены черновые работы: стены оштукатурены, сделено разделение комнат, установлены окна. Квартира также может использоваться как коммерческое помещение.
Дополнительная информация
Парк
Лифт
Карта
Цена
$ 279,000
- ֏ 108,810,000
- ₽ 25,245,940



























